Carrer d'Aiora, 35, bajo - Patraix, 46018 Valencia
C/ Dolores Marqués, 11 - 46020 València, Valencia




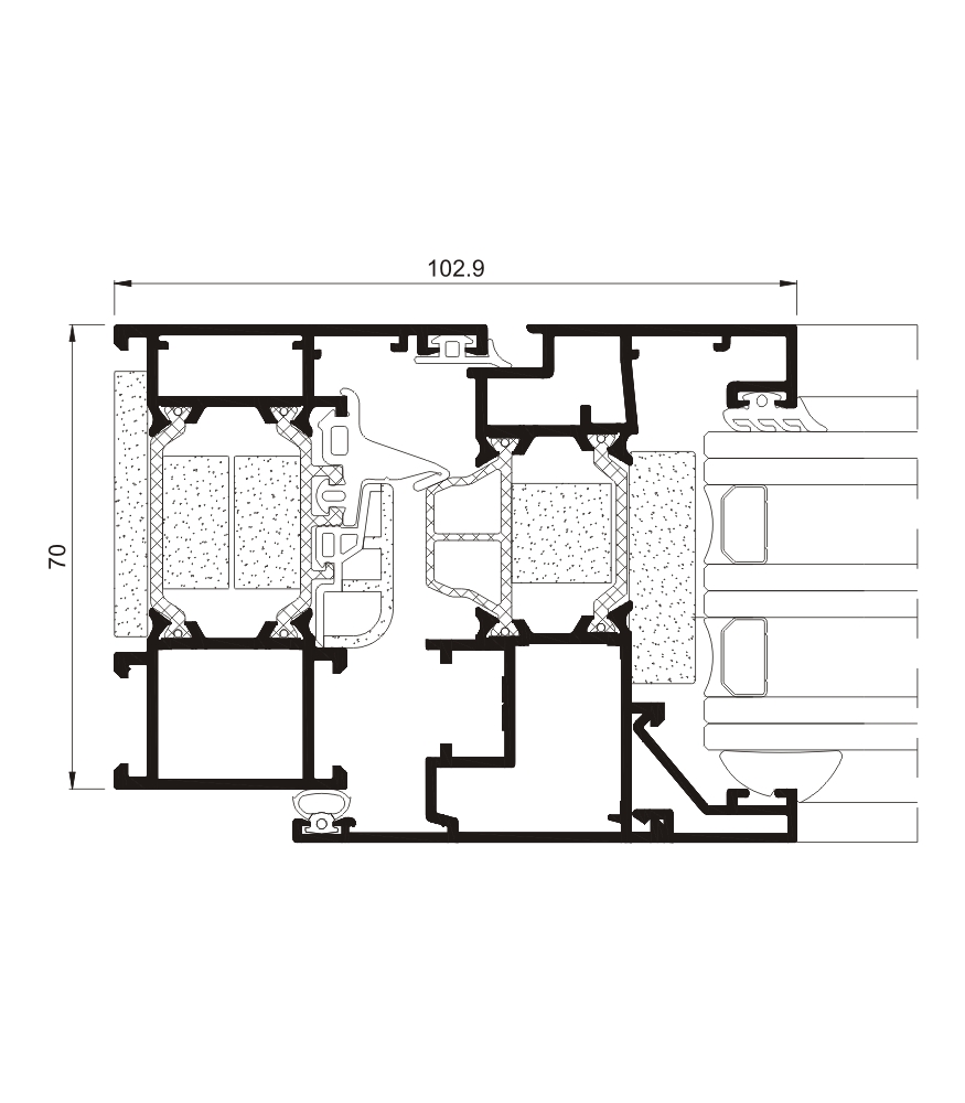
Sistema abisagrado de 70 mm de profundidad de marco compatible con cualquier herraje de canal 16 estándar. Presenta una rotura de puente térmico de 35 mm en marco y 30 mm en hoja, ofreciendo un gran rendimiento térmico y acústico.
Posibilidades
» Herraje de seguridad
» Herraje oculto
» Drenaje oculto
» Accesibilidad
» Acristalamiento
Máx. 55 mm
Mín. 15 mm
» Posibilidades de apertura
Apertura interior
Practicable
Oscilobatiente
Osciloparalela
Abatible
Plegable
Apertura exterior
Practicable (puerta)
» Secciones
Marco 70 mm
Hoja 78 mm
» Espesor de perfilería
Ventana 1,5 mm
Puerta 1,7 mm
» Longitud varilla de poliamida
Marco 35 mm
Hoja 30 mm
» Dimensiones máx. hoja
Ancho (L) 1500 mm
Alto (H) 2600 mm
» Peso máx. hoja
150 Kg
Consultar peso y dimensiones máximas según tipología
» Posibilidades estéticas
Hoja: recta
Junquillo: recto y curvo
» Acabados
Posibilidad bicolor
Lacado colores (RAL, moteados y rugosos)
Lacado imitación madera
Lacado antibacteriano
Anodizado
» Transmitancia
Uw ≥ 0,9 (W/m2K)
» Aislamiento acústico
Rw hasta 46 dB
» Permeabilidad al aire
Rw hasta 46 dB
» Estanqueidad al agua
(UNE-EN 12208) Clase E1500
» Resistencia al viento
(UNE-EN 12210) Clase C5
» Certificación DTA de laboratorio CSTB
Avis technique - Ref. 6/17-2363
» Ensayo de referencia
Ensayo de referencia AEV 1,23 x 1,48 m / 2 hojas