Skip to content Skip to footer

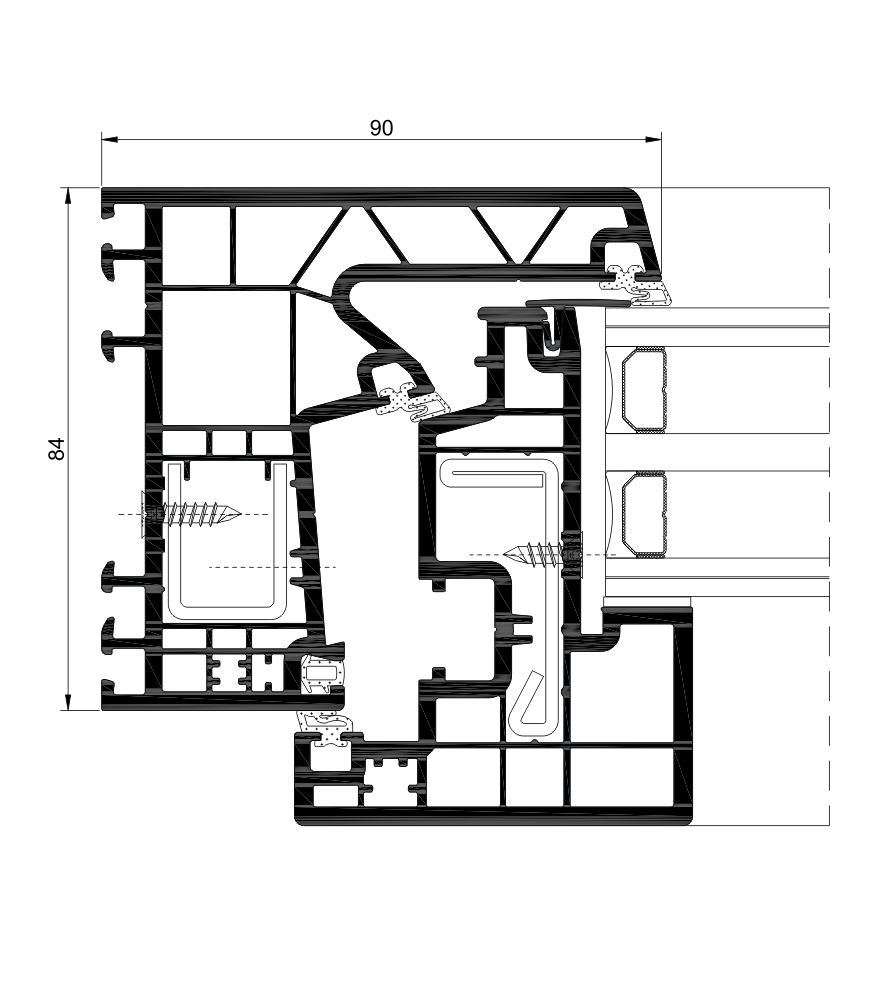
A 84 Hoja oculta

Ventana minimalista con una sección vista de tan solo 90 mm y posibilidad de nudo central reducido de la misma medida. Este sistema de 84 mm de profundidad y perfilería de 6 cámaras combina su elegante diseño con un excelente rendimiento térmico, con una transmitancia Uf desde 1,11 W/m²K.

Posibilidades:
Herraje oculto
Herraje de seguridad
Accesibilidad
Drenaje oculto

Datos Técnicos

» Acristalamiento

Máx. 46,5 mm
Mín. 32 mm

» Posibilidades de apertura

Apertura interior
Practicable
Oscilobatiente
Abatible

» Secciones

Marco 84 mm
Hoja 84 mm

» Dimensiones min. máx. hoja

Ancho (L) 400–1400 mm
Alto (H) 450–2500 mm

» Peso máx. hoja

130 Kg
Ventana / Balconera

Consultar peso y dimensiones máximas según tipología

» Acabados

Blanco
Color
Bicolor
Imitación madera
Metalizado

Ensayos

» Transmitancia

Uf ≥ 1,11 (W/m²K)

» Aislamiento acústico

Rw hasta 46 dB

» Permeabilidad al aire

(UNE-EN 12207) Clase 4

» Estanqueidad al agua

(UNE-EN 12208) Clase E2250

» Resistencia al viento

(UNE-EN 12210) Clase C5

» Ensayo de referencia

Ensayo AEV 1,23 x 1,48 m / 2 hojas

Blog

¿Cómo elegir la ventana de madera adecuada para tu hogar?
Q Proin faucibus nec mauris a sodales, sed elementum mi tincidunt. Sed eget viverra egestas nisi in consequat. Fusce sodales augue a accumsan. Cras sollicitudin, ipsum eget blandit pulvinar. Integer…
¿Cómo aislar ventanas y puertas de madera?
Q Proin faucibus nec mauris a sodales, sed elementum mi tincidunt. Sed eget viverra egestas nisi in consequat. Fusce sodales augue a accumsan. Cras sollicitudin, ipsum eget blandit pulvinar. Integer…
Instalación de ventanas de metal en casa
Q Proin faucibus nec mauris a sodales, sed elementum mi tincidunt. Sed eget viverra egestas nisi in consequat. Fusce sodales augue a accumsan. Cras sollicitudin, ipsum eget blandit pulvinar. Integer…

En Esenzza Ventanas te ayudamos a disfrutar de un hogar más confortable, luminoso y eficiente. Trabajamos con materiales de la más alta calidad y un servicio personalizado para ofrecer soluciones a medida.

Dirección

C/ Dolores Marqués, 11
46020 – València, Valencia

Newsletter

Esenzza Ventanas © 2026. Todos los derechos reservados.